
Residential
Dean Court
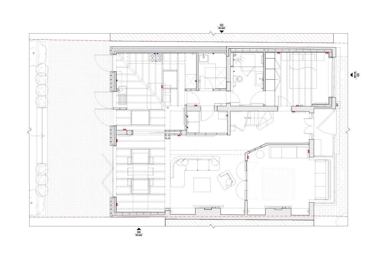
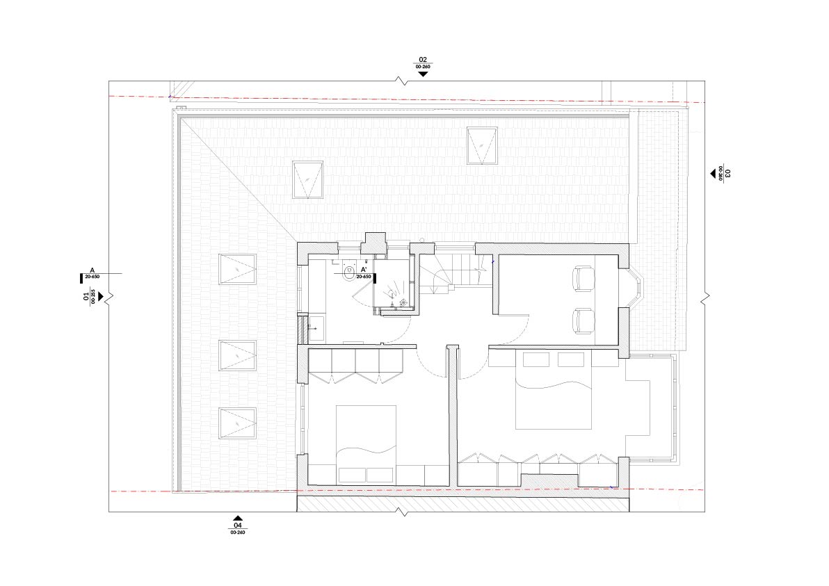
Project Summary
Dean is a sensitive residential renovation focused on creating a quiet, refined and comfortable living environment. The project is currently in the construction phase.
Approach
The design introduces subtle spatial improvements, a more coherent material palette and gentle reorganisation of internal areas. These interventions aim to open up the home, strengthen circulation and create a serene backdrop for everyday life.
Current Status
Works are ongoing, with the team closely guiding the transformation toward a calm, elegant domestic space that enhances the home's natural character.
Private Client
London
Undisclosed
Services
DesignConstructionProject Management