
21 Holt Road
Project Summary
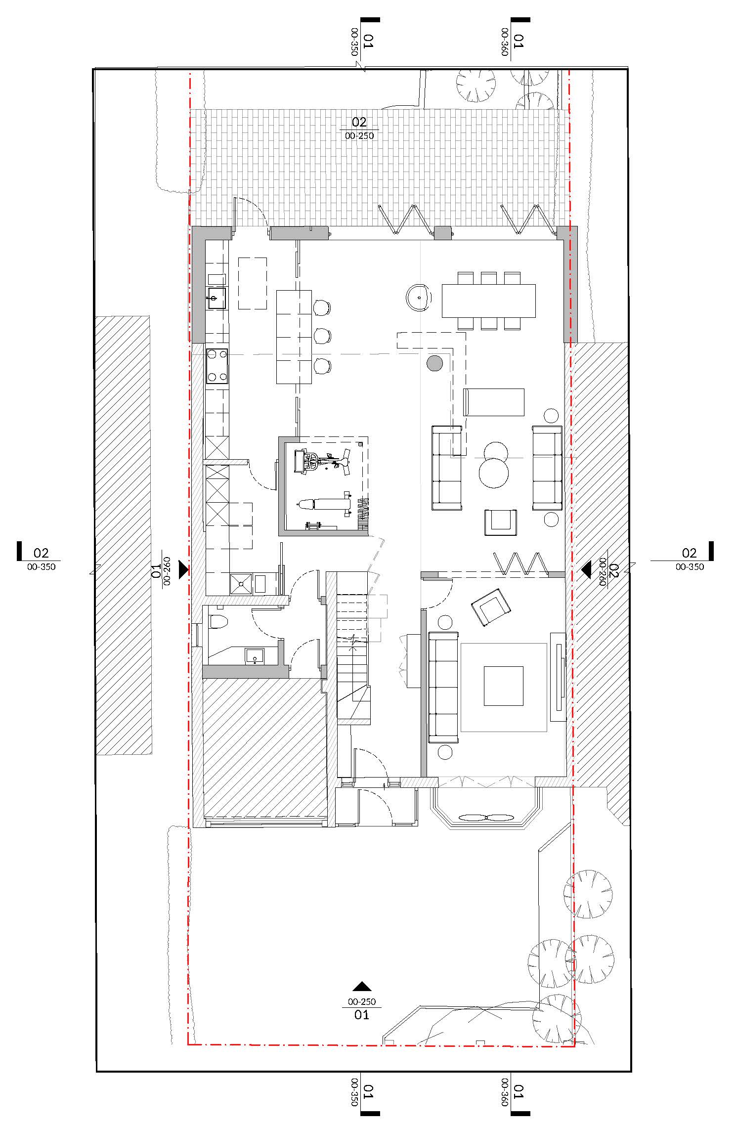
The Holt Extension is a residential project focused on expanding and enhancing a family home through a carefully designed rear extension and loft conversion.
Approach
Oak & Stone Consultancy Ltd reimagined the existing property by opening up the ground floor with a light-filled rear extension that creates a generous kitchen and living space connected to the garden. The loft conversion introduces an office space and an additional bathroom, maximising the home's footprint without compromising its character. A clean material palette, improved insulation and refined detailing bring a modern yet understated feel to the new spaces.
Outcome
A seamlessly extended home that offers greater comfort, functionality and space for family life; blending thoughtful design with everyday practicality.
Services