Dean

01

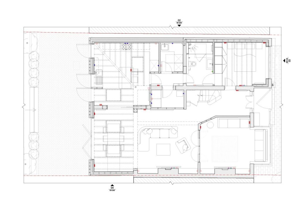
Project Summary

Dean is a sensitive residential renovation focused on creating a quiet, refined and comfortable living environment. The project is currently in the construction phase

02

Approach

The design introduces subtle spatial improvements, a more coherent material palette and gentle reorganisation of internal areas. These interventions aim to open up the home, strengthen circulation and create a serene backdrop for everyday life.

03

Outcome

Works are ongoing, with the team closely guiding the transformation toward a calm, elegant domestic space that enhances the home’s natural character.